Главная страница → Страница блога → Страница статьи

Как разрабатывается план дома

Заказчик часто представляет себе план дома как набор помещений определённой площади. Иногда он ещё учитывает взаимосвязь помещений. На самом деле всё гораздо
сложнее и интереснее. Он учитывает много факторов при разработке плана и начинает с изучения контекста участка- солнечного освещения, хороших видов из окон, защиты от
шума и многих других. Для этого он должен располагать исходными данными. Подробнее что нужно для начала работы писал в статье "Что нужно для начала проектирования".

тонкости разработки
сБ, сентябрь 22
МЕНЮ
1 этап
С их учётом контекста участка архитектор строит схемы расположения строений на участке. На находится место для парковки, хозблока, бани, зоны барбекю. Учитывается удобство и доступность связанных зон. Например, из кухни должен быть удобный выход на террасу, к летнему столу или к летней кухне/зоне барбекю.
2 этап
Архитектор пробует найти оптимальное функциональное зонирование строений: где лучше расположить вход в дом, общественную зону, тихую(спальную) зону, технические и бытовые помещения. На этом этапе неважно пока где конкретно располагаются окна и двери помещений, важно положение на плане, ориентация и связь разных зон друг с другом. Клиент с архитектором вместе выбирают какую из схем разрабатывать дальше.
3 этап
Архитектор более детально рисует схему: зоны делит на комнаты, становится понятной их форма и размеры, связь между собой. Снова могут возникнуть несколько вариантов. Снова выбирается лучший вариант. Иногда становится ясно, что схема была не такой удачной как казалось на 1-ом этапе. Тогда архитектор возвращается на 1 этап, к выбору другой схемы или её корректировке.
4 этап
На этом этапе схема становится похожей на план дома: появляются окна, двери, мебель и сантехника. Учитывается эргономика, взаимосвязь с обликом фасадов, площади помещений подсчитываются более точно. Снова варианты отбираются...
Особенности поэтапной работы
Этапов может быть от 3 до десятков, до тех пор пока план не будет удовлетворять заказчика и архитектора. Важно не менять этапы местами и не перескакивать через один. Если что-то не складывается, можно перейти на предыдущий этап. Если работать сразу на детальном плане, излишняя детализация будет отвлекать внимание и мешать решению более общих задач. Например, если сразу на плане нарисовать окна, то потом постоянно при изменении компоновки помещений их придётся постоянно передвигать. Это замедлит работу и приведёт к преждевременной усталости архитектора от проекта.
С. Алексанин


архитектор

плодотворного, увлекательного проектирования и строительства!
Мы сделаем всё возможное для этого
КАТАЛОГ СТАТЕЙ
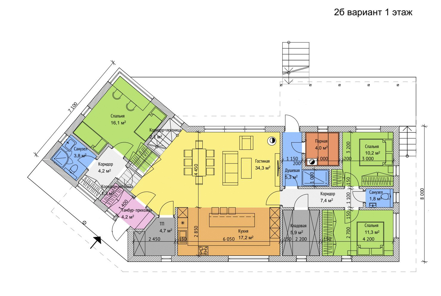
Типовой проект отличается от индивидуального отсутствием контекста- конкретного заказчика и участка. Автор проекта ориентируется на свои представления о потребностях заказчика. Поэтому типовые проекты разнообразны, но при этом все немного похожи друг на друга.
проекты
среда, сентябрь 25
Для того, чтобы проект был сделан с соблюдением нормативов и применим для строительства архитектору нужны следующие данные.
проектирование
пятница, сентябрь 27
Как сделать, чтобы архитектор сделал хороший план дома. За годы практики я понял, что если клиент приходит с нарисованным планом- это усложнит мне работу.
тонкости
суббота, сентябрь 22